SMEG Steckbeckenspüler – BPW1260J-EK5

Smeg Steckbeckenspüler BPW 1260 mit manueller Türöffnung

– Gerät zur Zeit noch nicht lieferbar –

Der Spüler mit vielen Pluspunkten

  • Touch-Display aus Glas


  • Höchste Hygienestandards


  • A0 Wert bis 600 programmierbar 


  • Grosse Anzahl von Programmen, individuell anpassbar


  • Grosse Anzahl an Wechselhalterungen für Pflegegeschirre


Die Standardausstattung

Alles auf einen Blick

Smeg BPW Display

Touch-Display aus Glas, für ein +Plus an Hygiene, mit berührungslosem Start der Programme und einer leicht zu reinigenden Oberfläche.

Smeg BPW Wasserdüsen

3 Phasen Spülprogramm, für ein +Plus an Sauberkeit. Feste und rotierenden Düsen garantieren eine optimale Reinigung des Pflegegeschirrs von innen und aussen. 

Smeg BPW Dampfdüsen

Thermische Desinfektion der Pflegegeschirre über Heissdampf, mit einem A0 Wert bis 600, für ein +Plus an Hygienesicherheit in der Pflege. 

Smeg BPW Zero Steam

Zero Steam Funktion. Kein Dampfaustritt nach Beendigung der Spülprogramme, für ein +Plus an Arbeitssicherheit in der täglichen Pflege. 

Smeg BPW Geschirr

Standard Wechselhalterung für Steckbecken, Urinflaschen und Nachstuhleimern, für ein +Plus an Flexibilität in der täglichen Pflege.

Smeg BPW USB Port

USB-Port zum Auslesen der Zyklen, für ein +Plus an Sicherheit in der Dokumentation. Leichtes Speichern der Daten auf dem mit-gelieferten USB-Stick oder anderen Medien.

Sonderausstattung optional

Alles auf einen Blick

Smeg BPW Wechselhalterungen

Verschiedene Wechselhalterungen für ein +Plus an Flexibilität. Halter für alle Arten von Pflegegeschirren, Urinbeuteln, uvm..

Smeg BPW Reiniger

Zusätzliches Reinigungsmittel mit eigener Pumpe. Das Zusatzprogramm, für ein +Plus am Sauberkeit in der täglichen Pflege. 

Smeg BPW Vertiefung

Vertiefung des Steckbeckenspülers um 150 mm, für ein +Plus an Flexibilität bei der Montage des Gerätes.

Smeg BPW Dryer

Rückkühlung über Gebläse mit Hepa-Filter H14, für ein +Plus an Zeitersparnis und Hygienesicherheit.

Technische Details

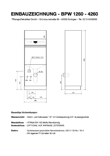
Technische Daten – BPW1260J-EK5

Höhe : 1600 mm

Breite: 600 mm

Tiefe: 450 mm (600 mm optional)

Leergewicht: 80 kg

Strom: 230 V / 50Hz / 16A / FI 30mA

Wasser: 1/2″ mit Vorabsperrung 3/4″ AG

Abwasser: DN 100

A0 Wert. Bis 600 (Programmierbar)

Downloads

PROSPEKT
BEDIENUNGSANLEITUNG
EINBAUZEICHNUNG